9590-S MAJESTIC
Features
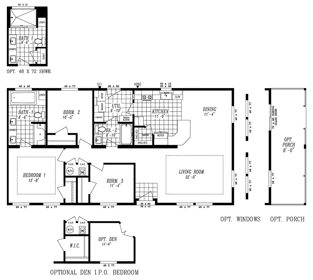
Floor Plan
9590-S Majestic
BEFORE OPTIONS
9590-S MAJESTIC
Features
Floor Plan
BEFORE OPTIONS
†Images may show options not included in base price
9' Ceilings
Breakfast Bar
Covered Entry
Covered Porch
Dining Room
Double Sinks in Bath
Drywall
Pantry
Separate Tub and Shower
Tray Ceiling
Utility Room

We accept trades!
Find a new home you love? Contact us for more information about our trade-in requirements and to schedule your free trade evaluation.
Learn MoreSchedule A Visit
†Advertised starting sales prices are for the home only. Delivery and installation costs are not included unless otherwise stated. Starting prices shown on this website are subject to change, see your local Home Center for current and specific home and pricing information. Sales price does not include other costs such as taxes, title fees, insurance premiums, filing or recording fees, land or improvements to the land, optional home features, optional delivery or installation services, wheels and axles, community or homeowner association fees, or any other items not shown on your Sales Agreement, Retailer Closing Agreement and related documents (your SA/RCA). If you purchase a home, your SA/RCA will show the details of your purchase. Homes available at the advertised sales price will vary by retailer and state. Artists’ renderings of homes are only representations and actual home may vary. Floor plan dimensions are approximate and based on length and width measurements from exterior wall to exterior wall. We invest in continuous product and process improvement. All home series, floor plans, specifications, dimensions, features, materials, and availability shown on this website are subject to change.
Find Your Perfect Home
© 1998-2026 Clayton. All rights reserved.